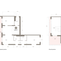
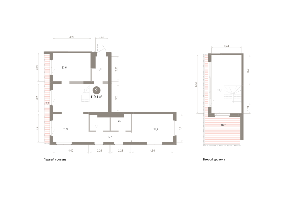
119.00 м² | 7 - 7 эт.

Площадь
119.00 м²
Этаж
7 из 7
Год постройки
2026
17 930 000 руб.
Екатеринбург, ул. Шаумяна, 18
Этажей:
7 — 7
Материал стен:
Монолит
Дополнительные параметры
Описание
Продаётся с кладовой. Двухуровневая квартира с кухней-гостиной и двумя спальнями в Южных кварталах. Особенности планировки: окно в коридоре, окна в пол, двухуровневая, вид во двор, разнесённые спальни, предчистовая отделка, постирочная, терраса на крыше. ОБЪЯВЛЕНИЕ ОТ ЗАСТРОЙЩИКА. Покупка квартиры защищена банком. Квартиру можно купить онлайн. Двухкомнатная квартира в «Южном квартале» — это квартира с большой кухней, которая объединена с гостиной, и двумя спальнями. Кухня-гостиная — это общественное пространство квартиры, где удобно собираться с семьей и друзьями. Здесь легко поместится зона приготовления пищи, стол со стульями для совместных трапез, мягкие места для отдыха и телевизор. Купить двухкомнатную квартиру в юго-западном районе Екатеринбурга рядом с автовокзалом выгодно напрямую от застройщика «Брусника». На сдаче в двухкомнатной ЖК «Южные кварталы» выполнена отделка под чистовую. Установлена надёжная сейф-дверь, пластиковые окна. В каждой 2к квартире — приборы учёта, радиаторы, розетки и выключатели. Сделана горизонтальная разводка отопления и водоснабжения, электрики. Стены оштукатурены. Пол готов к финишному покрытию — ламинату, плитке, линолеуму. Новостройки ЖК «Южные кварталы» от застройщика «Брусника» расположены в районе автовокзала в Екатеринбурге, на пересечении улиц Московская, Шаумяна и Фурманова. До станции метро «Чкаловская» — 15 минут пешком. Рядом с «Южным кварталом» — парки, культурно-развлекательный комплекс, два ТЦ, детские сады, школа олимпийского резерва, остановки всех видов наземного транспорта. Купить двухкомнатную квартиру в новостройках в районе автовокзала в Екатеринбурге можно с преимуществами от застройщика «Брусника»: - бесплатный юридический сервис по оформлению квартиры в «Южном квартале»; - ипотека со сниженной ставкой по госпрограмме; - беспроцентная рассрочка на период строительства 2к квартиры ЖК «Южные кварталы»; - обмен на новую 2 комнатную квартиру в «Южных кварталах» в зачёт имеющегося жилья. Получить одобрение ипотеки или рассрочку, а также осуществить обмен квартир можно онлайн. Запишитесь на онлайн презентацию по телефону или на сайте. ОБЪЯВЛЕНИЕ ОТ ЗАСТРОЙЩИКА. Покупка квартиры защищена банком. Эта двухкомнатная квартира расположена в «Южных кварталах». В ней есть большая кухня, которая объединена с гостиной, и две спальни. Купить двухкомнатную квартиру в районе Южного автовокзала в Екатеринбурге выгодно напрямую от застройщика Брусника. Жилой район «Южные кварталы» Проект расположен в районе Южного автовокзала в Екатеринбурге, на пересечении улиц Московская, Шаумяна и Фурманова. До станции метро «Чкаловская» — 15 минут пешком. Рядом с «Южными кварталами» — парки, культурно-развлекательный комплекс, два торговых центра, детские сады, школа олимпийского резерва, остановки общественного транспорта. Двор закрыт от машин и оформлен в стиле скандинавского натурализма. Он похож на парк, сформировавшийся без участия человека и сохраняющий обаяние в течение всего года. Под домом запроектирован подземный паркинг, а также кладовые для хранения сезонных вещей. Способы покупки в Бруснике Купить двухкомнатную квартиру можно с помощью - ипотеки, оформленной в одном из 14 банков-партнеров; - беспроцентной рассрочки от застройщика; - программы обмена; Брусника возьмет на себя все правовые вопросы по приобретению недвижимости. Специалисты компании будут осуществлять бесплатную юридическую поддержку: помогут получить одобрение ипотеки, оформить рассрочку и обменять квартиру онлайн. Запишитесь на показ по телефону или на сайте. № квартиры в нашей базе: ЮК04-А1-8-8.7.4.
Полное описание
Расположение объекта
image uploads
С «Доброделом» ставка по ипотеке ниже
Специальные программы ипотечного кредитования
Подбор ипотеки
Подходящее предложение
Сумма кредита
0 руб.
Ежемесячный платеж
0 руб.
Ставка
от 0%
Банки
Сбербанк
ПримСоцБанк
ДОМ.РФ
Металлинвестбанк
ВТБ банк
Похожие предложения
18 130 000 руб.
122.00 м² | 7 - 7 эт.
ул. Шаумяна, 18
19 680 000 руб.
131.00 м² | 8 - 8 эт.
Московская 158
18 350 000 руб.
131.00 м² | 8 - 8 эт.
Московская 158
18 990 000 руб.
129.00 м² | 2 - 9 эт.
Московская 158
17 160 000 руб.
117.00 м² | 7 - 9 эт.
ул. Шаумяна, 18
19 370 000 руб.
116.00 м² | 5 - 7 эт.
ул. Шаумяна, 18
19 640 000 руб.
116.00 м² | 6 - 7 эт.
ул. Шаумяна, 18
19 140 000 руб.
116.00 м² | 3 - 7 эт.
ул. Шаумяна, 18
19 370 000 руб.
116.00 м² | 4 - 7 эт.
ул. Шаумяна, 18
17 330 000 руб.
118.00 м² | 7 - 7 эт.
ул. Шаумяна, 18
Не нашли подходящий объект?
Отправьте заявку — мы подберем другой вариант
Ранее вы смотрели
3 332 000 руб.
34.00 м² | 4 - 8 эт.
ул. Широкореченская
4 185 000 руб.
22.30 м² | 31 - 31 эт.
ул. Крауля, 177А
4 430 000 руб.
26.00 м² | 9 - 9 эт.
ул. Академика Ландау, стр. 5
18 275 000 руб.
73.10 м² | 1 - 30 эт.
ул Блюхера, 1
8 061 000 руб.
33.90 м² | 31 - 31 эт.
ул. Крауля, 177А
4 195 800 руб.
22.30 м² | 27 - 31 эт.
ул. Крауля, 177А
17 034 300 руб.
75.30 м² | 24 - 29 эт.
г. Екатеринбург, ул. Азина
18 366 000 руб.
76.20 м² | 30 - 31 эт.
г. Екатеринбург, ул. Азина
4 185 000 руб.
22.30 м² | 31 - 31 эт.
ул. Крауля, 177А
2 760 000 руб.
13.80 м²
ул Цвиллинга, 4/2
Отправить PDF
Нажимая кнопку «Отправить», вы подтверждаете свое согласие на обработку персональных данных
Отправить PDF
Нажимая кнопку «Отправить», вы подтверждаете свое согласие на обработку персональных данных
Заказать звонок
Оставьте свой номер, мы свяжемся
с вами в ближайшее время
Нажимая кнопку «Отправить», вы подтверждаете свое согласие на обработку персональных данных
Проконсультируем
Задайте интересующий вас вопрос, наши специалисты свяжутся с вами в ближайшее время
Нажимая кнопку «Отправить», вы подтверждаете свое согласие на обработку персональных данных
Спасибо за обращение!
Мы перезвоним вам
в ближайшее время
Выбрать объект
Нажимая кнопку «Отправить», вы подтверждаете свое согласие на обработку персональных данных
Добавить отзыв
Записаться на собеседование
Нажимая кнопку «Отправить», вы подтверждаете свое согласие на обработку персональных данных
Заявка на стажировку
Загрузить резюме
Обзор...
Файл не выбран
Поля, отмеченные *, обязательны для заполнения
Нажимая кнопку «Отправить заявку», вы подтверждаете свое согласие на обработку персональных данных
Задать вопрос
Нажимая кнопку «Отправить», вы подтверждаете свое согласие на обработку персональных данных
Хочу работать с вами
Оставьте свой номер, мы свяжемся
с вами и все обсудим
Нажимая кнопку «Отправить», вы подтверждаете свое согласие на обработку персональных данных
Записаться на курс
Курс начинающего риэлтора
Нажимая кнопку «Отправить», вы подтверждаете свое согласие на обработку персональных данных
Оставьте отзыв о специалисте
Оцените качество работы
Укажите номер телефона, чтобы мы могли связаться с вами для подтверждения обратной связи в случае негативного отзыва, или оставьте свой отзыв, позвонив по номеру +7 (343) 363-06-01
Нажимая кнопку «Оставить отзыв»,K вы подтверждаете свое согласие на обработку персональных данных
Выберите Ваш регион:
Упс!.. Интернет пропал!
Ваш браузер устарел.
Установите любой из современныx браузеров: