161.00 м² | 8 - 8 эт.

Площадь
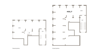
161.00 м²
Этаж
8 из 8
Год постройки
2025
13 770 000 руб.
Екатеринбург, ул. Павлодарская,17
Этажей:
8 — 8
Материал стен:
Монолит
Дополнительные параметры
Описание
Продаётся с паркингом. Квартира с кухней-гостиной и тремя спальнями в районе Шишимская горка. Особенности планировки: второй санузел, без отделки, вид во двор, терраса на крыше. ОБЪЯВЛЕНИЕ ОТ ЗАСТРОЙЩИКА. Покупка квартиры защищена банком. Квартиру можно купить онлайн. Трёхкомнатная квартира в микрорайоне «Шишимская горка» от застройщика «Брусника» — это квартира с объединенной кухней-гостиной и тремя спальнями. В квартире предусмотрена просторная ванная комната, гостевой санузел, ниши под хранение и гардеробные. Комнаты в трёхкомнатной квартире имеют правильную прямоугольную форму близкую к квадрату. Отсутствуют лишние углы и выступы. Гардеробные зоны и ниши для шкафов помогают разумно использовать пространство 3к квартиры, иметь больше свободного места. На сдаче в трёхкомнатной квартире ЖК «Шишимская горка» выполнена отделка под чистовую. Установлена надёжная сейф-дверь с замком и шумоизоляцией. В 3к квартире — счётчики горячего и холодного водоснабжения, система телеметрии, радиаторы с терморегуляторами, розетки и выключатели. Выполнена горизонтальная разводка отопления и водоснабжения, разводка электрики. Стены в квартире оштукатурены и выровнены. Пол готов к финишному покрытию — ламинату, плитке, линолеуму. ЖК «Шишимская горка» расположен в центре Уктуса, между улицами Павлодарская, Гастелло и Дальневосточная, рядом с крупными автомобильными развязками — Объездной дорогой и Кольцовским трактом. «Шишимская горка» связывает центр города и зелёный район Уктусских гор. Пять минут на автомобиле, пятнадцать на общественном транспорте до станции метро «Ботаническая». Между кварталами через весь микрорайон будет проходить пешеходная улица. Первые этажи будут наполнены общественными функциями: магазинами, кафе, полезными сервисами. «Шишимская горка» представляет собой жилой район из кварталов и башен с голландской архитектурой и камерными дворами, которые выходят на широкий пешеходный бульвар. Во дворах сделаны площадки для детей разных возрастов, велодорожки, места для отдыха взрослых. Под домами ЖК предусмотрен подземный паркинг для правильного хранения автомобилей. Купить новую трёхкомнатную квартиру на Уктусе выгодно на этапе строительства. Цена квартиры в новостройках ЖК «Шишимская горка» зависит от готовности дома, положении на этаже, видовых характеристик. Покупка 3к квартиры на Уктусе напрямую от застройщика «Брусника» даёт ряд привилегий: - бесплатный юридический сервис по оформлению квартиры на Уктусе от специалистов застройщика; - ипотека со сниженной ставкой по госпрограмме; - беспроцентная рассрочка на период строительства квартиры в ЖК «Шишимская горка»; - обмен на новую трёхкомнатную в «Шишимской горке» своей старой квартиры в Екатеринбурге. Получить одобрение ипотеки или рассрочку, а также осуществить обмен квартир можно онлайн. Запишитесь на онлайн презентацию по телефону или на сайте. № квартиры в нашей базе: ШГ7-ГП4-1-1.8.2.
Полное описание
Расположение объекта
image uploads
С «Доброделом» ставка по ипотеке ниже
Специальные программы ипотечного кредитования
Подбор ипотеки
Подходящее предложение
Сумма кредита
0 руб.
Ежемесячный платеж
0 руб.
Ставка
от 0%
Банки
Сбербанк
ПримСоцБанк
ДОМ.РФ
Металлинвестбанк
ВТБ банк
Похожие предложения
13 250 000 руб.
148.00 м² | 2 - 7 эт.
ул. Таватуйская, 20/7 стр
13 260 000 руб.
149.00 м² | 1 - 9 эт.
ул. Таватуйская, 20/4 стр
Не нашли подходящий объект?
Отправьте заявку — мы подберем другой вариант
Ранее вы смотрели
30 000 руб.
1-к квартира | 35.10 м² | 12 - 25 эт.
пр-кт. Академика Сахарова,29/4
22 570 000 руб.
110.00 м² | 7 - 9 эт.
Некрасова, 8
7 660 000 руб.
38.30 м² | 14 - 30 эт.
ул Блюхера, 1
7 200 000 руб.
48.00 м² | 6 - 8 эт.
Гастелло, 19Г
Отправить PDF
Нажимая кнопку «Отправить», вы подтверждаете свое согласие на обработку персональных данных
Отправить PDF
Нажимая кнопку «Отправить», вы подтверждаете свое согласие на обработку персональных данных
Заказать звонок
Оставьте свой номер, мы свяжемся
с вами в ближайшее время
Нажимая кнопку «Отправить», вы подтверждаете свое согласие на обработку персональных данных
Проконсультируем
Задайте интересующий вас вопрос, наши специалисты свяжутся с вами в ближайшее время
Нажимая кнопку «Отправить», вы подтверждаете свое согласие на обработку персональных данных
Спасибо за обращение!
Мы перезвоним вам
в ближайшее время
Выбрать объект
Нажимая кнопку «Отправить», вы подтверждаете свое согласие на обработку персональных данных
Добавить отзыв
Записаться на собеседование
Нажимая кнопку «Отправить», вы подтверждаете свое согласие на обработку персональных данных
Заявка на стажировку
Загрузить резюме
Обзор...
Файл не выбран
Поля, отмеченные *, обязательны для заполнения
Нажимая кнопку «Отправить заявку», вы подтверждаете свое согласие на обработку персональных данных
Задать вопрос
Нажимая кнопку «Отправить», вы подтверждаете свое согласие на обработку персональных данных
Хочу работать с вами
Оставьте свой номер, мы свяжемся
с вами и все обсудим
Нажимая кнопку «Отправить», вы подтверждаете свое согласие на обработку персональных данных
Записаться на курс
Курс начинающего риэлтора
Нажимая кнопку «Отправить», вы подтверждаете свое согласие на обработку персональных данных
Оставьте отзыв о специалисте
Оцените качество работы
Укажите номер телефона, чтобы мы могли связаться с вами для подтверждения обратной связи в случае негативного отзыва, или оставьте свой отзыв, позвонив по номеру +7 (343) 363-06-01
Нажимая кнопку «Оставить отзыв»,K вы подтверждаете свое согласие на обработку персональных данных
Выберите Ваш регион:
Упс!.. Интернет пропал!
Ваш браузер устарел.
Установите любой из современныx браузеров: