175.00 м² | 7 - 7 эт.

Площадь
175.00 м²
Этаж
7 из 7
Год постройки
2026
23 860 000 руб.
Екатеринбург, ул. Шаумяна, 18
Этажей:
7 — 7
Материал стен:
Монолит
Дополнительные параметры
Описание
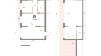
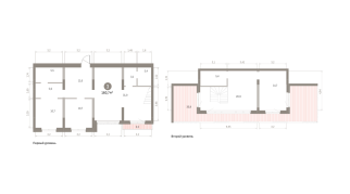
Продаётся с кладовой. Двухуровневая квартира с кухней-гостиной и тремя спальнями в Южных кварталах. Особенности планировки: второй санузел, окно в коридоре, гардеробная, окна в пол, двухуровневая, вид во двор, разнесённые спальни, предчистовая отделка, мастер-спальня, летняя кухня на крыше, постирочная, терраса на крыше. ОБЪЯВЛЕНИЕ ОТ ЗАСТРОЙЩИКА. Покупка квартиры защищена банком. Квартиру можно купить онлайн. Трёхкомнатная квартира в «Южных кварталах» — это квартира с большой кухней, которая объединена с гостиной, и тремя спальнями. Кухня-гостиная — это общественное пространство квартиры, где удобно собираться с семьей и друзьями. Здесь легко поместится зона приготовления пищи, стол со стульями для совместных трапез, мягкие места для отдыха и телевизор. Купить трёхкомнатную квартиру в юго-западном районе Екатеринбурга выгодно напрямую от застройщика «Брусника». На сдаче в трёхкомнатной ЖК «Южные кварталы» выполнена отделка под чистовую. Установлена надёжная сейф-дверь, пластиковые окна. В каждой 3к квартире — приборы учёта, радиаторы, розетки и выключатели. Сделана горизонтальная разводка отопления и водоснабжения, электрики. Стены оштукатурены. Пол готов к финишному покрытию — ламинату, плитке, линолеуму. Новостройки ЖК «Южные кварталы» от застройщика «Брусника» расположены в районе автовокзала в Екатеринбурге, на пересечении улиц Московская, Шаумяна и Фурманова. До станции метро «Чкаловская» — 15 минут пешком. Рядом с «Южным кварталом» — парки, культурно-развлекательный комплекс, два ТЦ, детские сады, школа олимпийского резерва, остановки всех видов наземного транспорта. Жилой район «Южные кварталы» — это комплексный проект развития территории юго-западного района Екатеринбурга застройщиком «Брусника». Внутри новостройки — закрытый двор без машин. Под домом расположен подземный паркинг со стандартными и семейными местами. Купить новую трёхкомнатную квартиру в новостройках юго-западного района выгодно на этапе строительства. Цена 3к квартиры на Шаумяна зависит от готовности дома, положения на этаже, вида из окна. Покупка от застройщика «Брусника» даёт ряд привилегий: - бесплатный юридический сервис по оформлению квартиры в «Южном квартале»; - ипотека со сниженной ставкой по госпрограмме; - беспроцентная рассрочка на период строительства 3к квартиры ЖК «Южные кварталы»; - обмен на новую 3 комнатную квартиру в «Южных кварталах» в зачёт имеющегося жилья. Получить одобрение ипотеки или рассрочку, а также осуществить обмен квартир можно онлайн. Запишитесь на онлайн презентацию по телефону или на сайте. ОБЪЯВЛЕНИЕ ОТ ЗАСТРОЙЩИКА. Покупка квартиры защищена банком. Эта трёхкомнатная квартира находится в «Южных кварталах». В ней спроектированы большая кухня-гостиная и три спальни, чтобы у каждого члена семьи было своё личное пространство. Купить трехкомнатную квартиру в районе Южного автовокзала в Екатеринбурге выгодно напрямую от застройщика Брусника. Жилой район «Южные кварталы» Проект расположен в районе Южного автовокзала в Екатеринбурге, на пересечении улиц Московская, Шаумяна и Фурманова. До станции метро «Чкаловская» — 15 минут пешком. Рядом с «Южными кварталами» — парки, культурно-развлекательный комплекс, два торговых центра, детские сады, школа олимпийского резерва, остановки общественного транспорта. Двор закрыт от машин и оформлен в стиле скандинавского натурализма. Он похож на парк, сформировавшийся без участия человека и сохраняющий обаяние в течение всего года. Под домом запроектирован подземный паркинг, а также кладовые для хранения сезонных вещей. Способы покупки в Бруснике Купить трёхкомнатную квартиру можно с помощью - ипотеки, оформленной в одном из 14 банков-партнеров; - беспроцентной рассрочки от застройщика; - программы обмена; Брусника возьмет на себя все правовые вопросы по приобретению недвижимости. Специалисты компании будут осуществлять бесплатную юридическую поддержку: помогут получить одобрение ипотеки, оформить рассрочку и обменять квартиру онлайн. Запишитесь на показ по телефону или на сайте. № квартиры в нашей базе: ЮК04-А1-1-1.7.1.
Полное описание
Расположение объекта
image uploads
С «Доброделом» ставка по ипотеке ниже
Специальные программы ипотечного кредитования
Подбор ипотеки
Подходящее предложение
Сумма кредита
0 руб.
Ежемесячный платеж
0 руб.
Ставка
от 0%
Банки
Сбербанк
ПримСоцБанк
ДОМ.РФ
Металлинвестбанк
ВТБ банк
Похожие предложения
21 560 000 руб.
160.00 м² | 7 - 9 эт.
ул. Шаумяна, 18
23 370 000 руб.
167.00 м² | 8 - 9 эт.
Московская 158
21 780 000 руб.
166.00 м² | 7 - 7 эт.
ул. Шаумяна, 18
Не нашли подходящий объект?
Отправьте заявку — мы подберем другой вариант
Ранее вы смотрели
13 080 000 руб.
81.00 м² | 12 - 16 эт.
Московская 158
6 438 900 руб.
38.10 м² | 18 - 30 эт.
ул Блюхера, 1
Отправить PDF
Нажимая кнопку «Отправить», вы подтверждаете свое согласие на обработку персональных данных
Отправить PDF
Нажимая кнопку «Отправить», вы подтверждаете свое согласие на обработку персональных данных
Заказать звонок
Оставьте свой номер, мы свяжемся
с вами в ближайшее время
Нажимая кнопку «Отправить», вы подтверждаете свое согласие на обработку персональных данных
Проконсультируем
Задайте интересующий вас вопрос, наши специалисты свяжутся с вами в ближайшее время
Нажимая кнопку «Отправить», вы подтверждаете свое согласие на обработку персональных данных
Спасибо за обращение!
Мы перезвоним вам
в ближайшее время
Выбрать объект
Нажимая кнопку «Отправить», вы подтверждаете свое согласие на обработку персональных данных
Добавить отзыв
Записаться на собеседование
Нажимая кнопку «Отправить», вы подтверждаете свое согласие на обработку персональных данных
Заявка на стажировку
Загрузить резюме
Обзор...
Файл не выбран
Поля, отмеченные *, обязательны для заполнения
Нажимая кнопку «Отправить заявку», вы подтверждаете свое согласие на обработку персональных данных
Задать вопрос
Нажимая кнопку «Отправить», вы подтверждаете свое согласие на обработку персональных данных
Хочу работать с вами
Оставьте свой номер, мы свяжемся
с вами и все обсудим
Нажимая кнопку «Отправить», вы подтверждаете свое согласие на обработку персональных данных
Записаться на курс
Курс начинающего риэлтора
Нажимая кнопку «Отправить», вы подтверждаете свое согласие на обработку персональных данных
Оставьте отзыв о специалисте
Оцените качество работы
Укажите номер телефона, чтобы мы могли связаться с вами для подтверждения обратной связи в случае негативного отзыва, или оставьте свой отзыв, позвонив по номеру +7 (343) 363-06-01
Нажимая кнопку «Оставить отзыв»,K вы подтверждаете свое согласие на обработку персональных данных
Выберите Ваш регион:
Упс!.. Интернет пропал!
Ваш браузер устарел.
Установите любой из современныx браузеров: