Екатеринбург
+7 (343) 351-75-96
0
0
Вторичная
Вторичная
Квартиры
Комнаты
1-к квартиры
2-к квартиры
3-к квартиры
4-к квартиры
Новостройки
Новостройки
Квартиры
Квартиры - студии
1-к квартиры
2-к квартиры
3-к квартиры
4-к квартиры
Каталог ЖК
Дома, участки
Коммерческая
Гаражи
Ипотека
Компания
Компания
Добрые дела
О нас
Франчайзинг
Офисы
Карьера
Главная
/
Новостройки
/
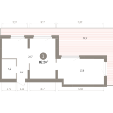
82.00 м² | 7 - 7 эт.
82.00 м² | 7 - 7 эт.
Площадь
82.00 м²
Этаж
7 из 7
Год постройки
2027
7 780 000 руб.
PDF
Поделиться
В избранное
Поделиться:
Екатеринбург, ул. Таватуйская, 20/7 стр
Этажей:
7 — 7
Материал стен:
Монолит
Дополнительные параметры
Описание
Продаётся с кладовой. Квартира с кухней-гостиной и одной спальней в квартале «Депо». Особенности планировки: предчистовая отделка, терраса на крыше. № квартиры в нашей базе: ДЕП07-Ж3.7.3.
Полное описание
Расположение объекта
С «Доброделом» ставка по ипотеке ниже
Специальные программы ипотечного кредитования
Узнать подробнее
Подбор ипотеки
Стоимость недвижимости
Первоначальный взнос
Срок кредита
Подходящее предложение
Сумма кредита
0
руб.
Ежемесячный платеж
0
руб.
Ставка
от
0
%
Банки
Узнать, сколько мне одобрят
Похожие предложения
По цене
7 011 900 руб.
74.20 м² | 8 - 13 эт.
ул. Евгения Савкова
Посмотреть
8 340 000 руб.
74.00 м² | 2 - 8 эт.
ул. Таватуйская, 20/4 стр
Посмотреть
7 800 000 руб.
82.00 м² | 8 - 9 эт.
ул. Таватуйская, 20/7 стр
Посмотреть
7 870 000 руб.
82.00 м² | 8 - 9 эт.
ул. Таватуйская, 20/7 стр
Посмотреть
Не нашли подходящий объект?
Отправьте заявку —
мы подберем другой вариант
Подобрать
другой вариант
+7 (343) 351-75-96
Вторичная
Новостройки
Дома, участки
Коммерческая
Гаражи
Аренда
Добрые дела
О нас
Франчайзинг
Ипотека
Офисы
Карьера
Найти агента по телефону
Отправить PDF
Нажимая кнопку «Отправить», вы подтверждаете свое согласие на обработку
персональных данных
Отправить
Отправить PDF
Нажимая кнопку «Отправить», вы подтверждаете свое согласие на обработку
персональных данных
Отправить
Заказать звонок
Оставьте свой номер, мы свяжемся
с вами в ближайшее время
Нажимая кнопку «Отправить», вы подтверждаете свое согласие на обработку
персональных данных
Отправить
Проконсультируем
Задайте интересующий вас вопрос, наши специалисты свяжутся с вами в ближайшее время
Нажимая кнопку «Отправить», вы подтверждаете свое согласие на обработку
персональных данных
Отправить
Спасибо за обращение!
Мы перезвоним вам
в ближайшее время
Закрыть
Выбрать объект
Нажимая кнопку «Отправить», вы подтверждаете свое согласие на обработку
персональных данных
Отправить
Добавить отзыв
Отправить
Записаться на собеседование
Нажимая кнопку «Отправить», вы подтверждаете свое согласие на обработку
персональных данных
Отправить
Заявка на стажировку
Ваше имя
+7 ...
E-mail
Район проживания
Загрузить резюме
Обзор...
Файл не выбран
Отправить заявку
Поля, отмеченные
*
, обязательны для заполнения
Нажимая кнопку «Отправить заявку», вы подтверждаете свое согласие на обработку
персональных данных
Задать вопрос
Нажимая кнопку «Отправить», вы подтверждаете свое согласие на обработку
персональных данных
Отправить
Хочу работать с вами
Оставьте свой номер, мы свяжемся
с вами и все обсудим
Нажимая кнопку «Отправить», вы подтверждаете свое согласие на обработку
персональных данных
Отправить
Записаться на курс
Курс начинающего риэлтора
Нажимая кнопку «Отправить», вы подтверждаете свое согласие на обработку
персональных данных
Отправить
Оставьте отзыв о специалисте
Оцените качество работы
Укажите номер телефона, чтобы мы могли связаться с вами для подтверждения обратной связи в случае негативного отзыва, или оставьте свой отзыв, позвонив по номеру
+7 (343) 363-06-01
Оставить отзыв
Нажимая кнопку «Оставить отзыв»,K вы подтверждаете свое согласие на обработку
персональных данных
Выберите Ваш регион:
Е
Екатеринбург
Упс!.. Интернет пропал!
Ваш браузер устарел.
Установите любой из современныx браузеров: