3-к квартира | 87.70 м² | 13 - 16 эт.

Площадь
87.70 м²
Этаж
13 из 16
Год постройки
2023
10 600 000 руб.
Екатеринбург, ул. Крауля,93
Этажей:
13 — 16
Дополнительные параметры
Описание

Абсолютно новая квартира, в квартире никто не жил. Отделка чистовая.

Эта квартира подойдет для тех людей, кто:
- любит, когда дома тихо. В доме хорошая звукоизоляция, ведь соблюдались нормы при строительстве кирпичного дома. Широкие подоконники для любителей выращивать цветы и рассаду;
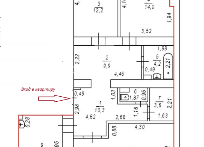
- любит квартиры с уникальной планировкой: огромная квартира с 3-мя изолированными комнатами (12,2, 14,0, 20,3 кв.м.) и кухня 11,6 кв.м). Посмотрите планировку, там есть где разгуляться и сделать очень интересное пространство для жизни. Приходите на просмотр, расскажу как сделать еще более функциональнее эту планировку, порисуем вместе;
- любит заезжать в квартиру первыми и создавать свой уют без присутствия энергетики предыдущих собственников. Даа - это особый кайф;
- любит ездить на собственном автомобиле, ведь парковка есть прямо перед подъездом. В доме есть подземный паркинг, возможно снять место в аренду;
- любит жить в доме с организованным ТСН;
- любит жить в доме, находящемся вдали от шумных дорог, ведь это опять про тишину;
- ценит наличие детских площадок для маленьких детей и кортов для старших;
- хочет купить квартиру у дееспособного, совершеннолетнего собственника, ведь каждому хочется быть абсолютно спокойным за своё будущее;
- у кого есть любимый питомец, вокруг достаточно место для прогулок с Вашим четвероногим другом.

РАЙОН: район Верх-Исетский, мкр. ВИЗ.

ДОМ: год сдачи в эксплуатацию нашей секции 2023 год. А сдача первой секции этого дома 2007 год. Материал стен: кирпич.

ИНФРАСТРУКТУРА: в шаговой доступности находятся объекты социального и культурного назначения, например ДЮЦ "Вариант" или ДЮСШ "Старт" в школе № 171. Во дворе школа №48 и сразу за ней другая №171, детский сад №13.

ЮРИДИЧЕСКАЯ ЧИСТОТА: Один совершеннолетний собственник (собственник физическое лицо, в связи с этим покупка по семейной ипотеке не возможна) . Арестов - нет. Обременений нет.

ID объекта в нашей базе: 7534
Полное описание
Расположение объекта
image uploads
С «Доброделом» ставка по ипотеке ниже
Специальные программы ипотечного кредитования
Подбор ипотеки
Подходящее предложение
Сумма кредита
0 руб.
Ежемесячный платеж
0 руб.
Ставка
от 0%
Банки
ПримСоцБанк
Промсвязьбанк
ВТБ банк
Газпромбанк
Альфа-Банк
Похожие предложения
11 018 000 руб.
3-к квартира | 79.10 м² | 23 - 25 эт.
ул. 2-я Новосибирская,8
10 500 000 руб.
3-к квартира | 87.40 м² | 8 - 16 эт.
ул. Крауля,93
Не нашли подходящий объект?
Отправьте заявку — мы подберем другой вариант
Ранее вы смотрели
2 930 400 руб.
22.20 м² | 1 - 5 эт.
ул. Широкореченская
3 215 380 руб.
23.80 м² | 4 - 5 эт.
ул. Широкореченская
5 304 480 руб.
51.40 м² | 3 - 8 эт.
ул. Широкореченская
5 330 180 руб.
51.40 м² | 4 - 8 эт.
ул. Широкореченская
2 408 000 руб.
22.40 м² | 5 - 8 эт.
ул. Широкореченская
6 797 000 руб.
33.20 м² | 21 - 21 эт.
ул. Крауля, 177А
4 932 000 руб.
22.30 м² | 25 - 25 эт.
г. Екатеринбург, ул. Учителей, 33
7 587 521 руб.
44.76 м² | 16 - 25 эт.
Высоцкого
5 870 000 руб.
36.00 м² | 6 - 25 эт.
6 930 000 руб.
44.00 м² | 5 - 16 эт.
ул. Таватуйская, 20/7 стр
Про этот объект вам расскажет
Чусова Анна Владимировна
Чусова Анна Владимировна
79086302641
Позвоните мне
Заявка на просмотр
Отправить PDF
Нажимая кнопку «Отправить», вы подтверждаете свое согласие на обработку персональных данных
Отправить PDF
Нажимая кнопку «Отправить», вы подтверждаете свое согласие на обработку персональных данных
Заказать звонок
Оставьте свой номер, мы свяжемся
с вами в ближайшее время
Нажимая кнопку «Отправить», вы подтверждаете свое согласие на обработку персональных данных
Проконсультируем
Задайте интересующий вас вопрос, наши специалисты свяжутся с вами в ближайшее время
Нажимая кнопку «Отправить», вы подтверждаете свое согласие на обработку персональных данных
Спасибо за обращение!
Мы перезвоним вам
в ближайшее время
Выбрать объект
Нажимая кнопку «Отправить», вы подтверждаете свое согласие на обработку персональных данных
Добавить отзыв
Записаться на собеседование
Нажимая кнопку «Отправить», вы подтверждаете свое согласие на обработку персональных данных
Заявка на стажировку
Загрузить резюме
Обзор...
Файл не выбран
Поля, отмеченные *, обязательны для заполнения
Нажимая кнопку «Отправить заявку», вы подтверждаете свое согласие на обработку персональных данных
Задать вопрос
Нажимая кнопку «Отправить», вы подтверждаете свое согласие на обработку персональных данных
Хочу работать с вами
Оставьте свой номер, мы свяжемся
с вами и все обсудим
Нажимая кнопку «Отправить», вы подтверждаете свое согласие на обработку персональных данных
Записаться на курс
Курс начинающего риэлтора
Нажимая кнопку «Отправить», вы подтверждаете свое согласие на обработку персональных данных
Оставьте отзыв о специалисте
Оцените качество работы
Укажите номер телефона, чтобы мы могли связаться с вами для подтверждения обратной связи в случае негативного отзыва, или оставьте свой отзыв, позвонив по номеру +7 (343) 363-06-01
Нажимая кнопку «Оставить отзыв»,K вы подтверждаете свое согласие на обработку персональных данных
Выберите Ваш регион:
Упс!.. Интернет пропал!
Ваш браузер устарел.
Установите любой из современныx браузеров: