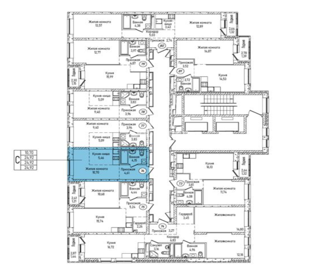
1-к квартира | 24.92 м² | 10 - 17 эт.

Площадь
24.92 м²
Этаж
10 из 17
Год постройки
2026
5 200 000 руб.
Екатеринбург, ул. Блюхера,38
Этажей:
10 — 17
Дополнительные параметры
Описание
СРОЧНАЯ ПРОДАЖА - выгодная возможность приобрести ликвидный объект в современном жилом комплексе на привлекательных условиях.

???? О ЖИЛОМ КОМПЛЕКСЕ «Тёплые кварталы»
Современный жилой комплекс комфорт-класса с продуманной городской средой и закрытой территорией. Проект ориентирован на удобство, безопасность и приватность жителей.
• Закрытый двор без машин
• Современные детские и спортивные площадки
• Благоустроенные общественные пространства
• Контроль доступа и безопасность
• Современная архитектура и качественные материалы строительства
Комплекс формирует спокойную и комфортную среду для жизни в динамичном районе города.

???? О КВАРТИРЕ
Студия площадью 24,92 м² на 10 видовом этаже - отличный вариант как для жизни, так и для инвестиций.
Главное преимущество - высокий этаж:
✔️ панорамное ощущение пространства
✔️ больше света
✔️ тишина и приватность
• Функциональная планировка без лишних метров
• Возможность рационального зонирования (кухня, спальня, рабочая зона)
• Видовой этаж - приятные виды и ощущение простора
• Подходит как для собственного проживания, так и под аренду
Квартира отлично подходит студентам и молодым специалистам - в шаговой/транспортной доступности находятся УрФУ и УрГЮУ, что обеспечивает стабильный спрос на аренду в данной локации.

???? ИНФРАСТРУКТУРА
Локация с развитой городской средой:
• удобные выезды в разные районы города
• остановки общественного транспорта рядом
• магазины, сервисы, повседневная инфраструктура в доступе
• образовательные кластеры и студенческая активность поблизости
Район активно развивается, что дополнительно усиливает инвестиционную привлекательность объекта.

???? ПРЕИМУЩЕСТВА
✔️ Новый современный ЖК комфорт-класса
✔️ Закрытая безопасная территория
✔️ Видовой 10 этаж
✔️ Ликвидный формат студии
✔️ Высокий арендный потенциал
✔️ Удобная локация рядом с университетами

⚡️ ИТОГ
Квартира - отличный выбор для:
собственного проживания
сдачи в аренду
долгосрочной инвестиции ID объекта в нашей базе: 7769
Полное описание
Расположение объекта
image uploads
С «Доброделом» ставка по ипотеке ниже
Специальные программы ипотечного кредитования
Подбор ипотеки
Подходящее предложение
Сумма кредита
0 руб.
Ежемесячный платеж
0 руб.
Ставка
от 0%
Банки
ПримСоцБанк
Промсвязьбанк
ВТБ банк
Газпромбанк
Альфа-Банк
Похожие предложения
4 690 000 руб.
1-к квартира | 24.00 м² | 14 - 16 эт.
ул. Академика Парина,41/2
5 399 000 руб.
1-к квартира | 26.10 м² | 14 - 25 эт.
ул. Блюхера,99
5 126 738 руб.
1-к квартира | 25.52 м² | 17 - 27 эт.
ул. Краснофлотцев,40/2
Не нашли подходящий объект?
Отправьте заявку — мы подберем другой вариант
Про этот объект вам расскажет
Манохин Егор Романович
Манохин Егор Романович
79122092535
Позвоните мне
Заявка на просмотр
Отправить PDF
Нажимая кнопку «Отправить», вы подтверждаете свое согласие на обработку персональных данных
Отправить PDF
Нажимая кнопку «Отправить», вы подтверждаете свое согласие на обработку персональных данных
Заказать звонок
Оставьте свой номер, мы свяжемся
с вами в ближайшее время
Нажимая кнопку «Отправить», вы подтверждаете свое согласие на обработку персональных данных
Проконсультируем
Задайте интересующий вас вопрос, наши специалисты свяжутся с вами в ближайшее время
Нажимая кнопку «Отправить», вы подтверждаете свое согласие на обработку персональных данных
Спасибо за обращение!
Мы перезвоним вам
в ближайшее время
Выбрать объект
Нажимая кнопку «Отправить», вы подтверждаете свое согласие на обработку персональных данных
Добавить отзыв
Записаться на собеседование
Нажимая кнопку «Отправить», вы подтверждаете свое согласие на обработку персональных данных
Заявка на стажировку
Загрузить резюме
Обзор...
Файл не выбран
Поля, отмеченные *, обязательны для заполнения
Нажимая кнопку «Отправить заявку», вы подтверждаете свое согласие на обработку персональных данных
Задать вопрос
Нажимая кнопку «Отправить», вы подтверждаете свое согласие на обработку персональных данных
Хочу работать с вами
Оставьте свой номер, мы свяжемся
с вами и все обсудим
Нажимая кнопку «Отправить», вы подтверждаете свое согласие на обработку персональных данных
Записаться на курс
Курс начинающего риэлтора
Нажимая кнопку «Отправить», вы подтверждаете свое согласие на обработку персональных данных
Оставьте отзыв о специалисте
Оцените качество работы
Укажите номер телефона, чтобы мы могли связаться с вами для подтверждения обратной связи в случае негативного отзыва, или оставьте свой отзыв, позвонив по номеру +7 (343) 363-06-01
Нажимая кнопку «Оставить отзыв»,K вы подтверждаете свое согласие на обработку персональных данных
Выберите Ваш регион:
Упс!.. Интернет пропал!
Ваш браузер устарел.
Установите любой из современныx браузеров: