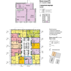
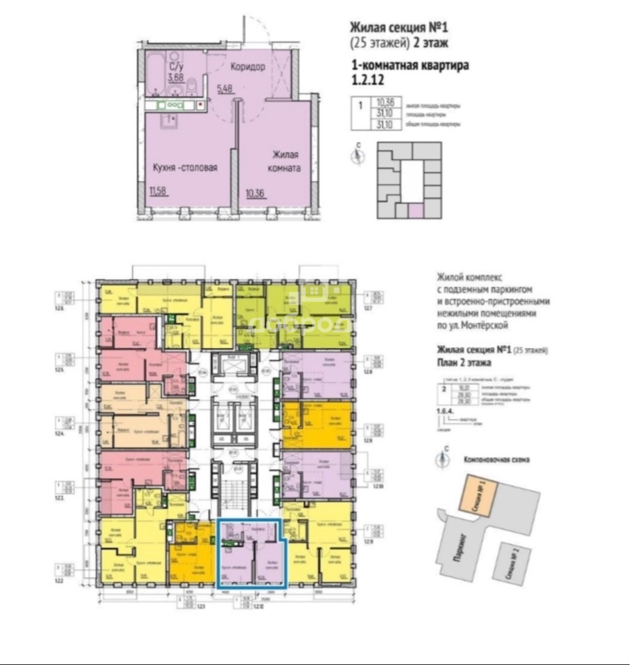
1-к квартира | 31.40 м² | 2 - 25 эт.

Площадь
31.40 м²
Этаж
2 из 25
Год постройки
2025
6 500 000 руб.
Екатеринбург, ул. Монтерская,8/2
Этажей:
2 — 25
Дополнительные параметры
Описание

Продам однокомнатную квартиру (Евро-2) в доме комфорт-класса, общей площадью 31,4 кв.метров расположена на 2 этаже.

РАЙОН:

Ленинский/Центр

Концепция нового жилого района активно развивается и представляет собой уникальный подход к застройке и освоению жилой территории.

ДВОР:

Приватный и безопасный двор, без машин. Во дворе представлено все для комфортного отдыха и счастливого детства. Закрытый двор доступен только для жителей. Системы контроля доступа, видеонаблюдение и служба охраны. Так же во дворе жителей ждет настоящий цветущий сад.

ДОМ:

Материал стен: Монолит-газозолобетон. 6 квартир в секции. Дизайнерские холлы, колясочные и другие приятные пространства для красивой жизни.

КВАРТИРА:

Эргономичная квартира расположилась на 2 этаже. Окна выходят на южную сторону. В квартире выполнен ремонт под ключ: Дизайнерские сейф-двери, стены выровнены и поклеены обои, на полу – кварц-винил (стяжка -цементно-песчаная), сан.узел в кафеле и с хорошей сантехникой, качественные межкомнатные двери, натяжные потолки. произведена разводка электрики, воды и отопления. Современные окна с мультифункциональным остеклением Energy Light, радиаторы отопления c терморегуляторами и телеметрией. В доме организована собственная котельная, система фильтрации воды.

ИНФРАСТРУКТУРА:

Жилой дом расположился в перспективном месте, вблизи детские сады, школы, парковая алея, Разная важная насыщенная инфраструктура для долгой и счастливой жизни. Метро, автобусы, трамвай в шаговой доступности.

ЮРИДИЧЕСКАЯ ЧИСТОТА:

- Квартира без арестов, обременение – ипотека Абсолютбанк.

- Собственник 1, совершеннолетний, не имеет исполнительнх листов, банкротом не является, паспорт действительный. Все проверено!

- Возможна семейная ипотека.

ID объекта в нашей базе: 7781
Полное описание
Расположение объекта
image uploads
С «Доброделом» ставка по ипотеке ниже
Специальные программы ипотечного кредитования
Подбор ипотеки
Подходящее предложение
Сумма кредита
0 руб.
Ежемесячный платеж
0 руб.
Ставка
от 0%
Банки
ПримСоцБанк
Промсвязьбанк
ВТБ банк
Газпромбанк
Альфа-Банк
Похожие предложения
5 950 000 руб.
1-к квартира | 28.70 м² | 8 - 24 эт.
ул. Красных командиров,3
Не нашли подходящий объект?
Отправьте заявку — мы подберем другой вариант
Про этот объект вам расскажет
Егорова Юлия Васильевна
Егорова Юлия Васильевна
79043835333
Позвоните мне
Заявка на просмотр
Отправить PDF
Нажимая кнопку «Отправить», вы подтверждаете свое согласие на обработку персональных данных
Отправить PDF
Нажимая кнопку «Отправить», вы подтверждаете свое согласие на обработку персональных данных
Заказать звонок
Оставьте свой номер, мы свяжемся
с вами в ближайшее время
Нажимая кнопку «Отправить», вы подтверждаете свое согласие на обработку персональных данных
Проконсультируем
Задайте интересующий вас вопрос, наши специалисты свяжутся с вами в ближайшее время
Нажимая кнопку «Отправить», вы подтверждаете свое согласие на обработку персональных данных
Спасибо за обращение!
Мы перезвоним вам
в ближайшее время
Выбрать объект
Нажимая кнопку «Отправить», вы подтверждаете свое согласие на обработку персональных данных
Добавить отзыв
Записаться на собеседование
Нажимая кнопку «Отправить», вы подтверждаете свое согласие на обработку персональных данных
Заявка на стажировку
Загрузить резюме
Обзор...
Файл не выбран
Поля, отмеченные *, обязательны для заполнения
Нажимая кнопку «Отправить заявку», вы подтверждаете свое согласие на обработку персональных данных
Задать вопрос
Нажимая кнопку «Отправить», вы подтверждаете свое согласие на обработку персональных данных
Хочу работать с вами
Оставьте свой номер, мы свяжемся
с вами и все обсудим
Нажимая кнопку «Отправить», вы подтверждаете свое согласие на обработку персональных данных
Записаться на курс
Курс начинающего риэлтора
Нажимая кнопку «Отправить», вы подтверждаете свое согласие на обработку персональных данных
Оставьте отзыв о специалисте
Оцените качество работы
Укажите номер телефона, чтобы мы могли связаться с вами для подтверждения обратной связи в случае негативного отзыва, или оставьте свой отзыв, позвонив по номеру +7 (343) 363-06-01
Нажимая кнопку «Оставить отзыв»,K вы подтверждаете свое согласие на обработку персональных данных
Выберите Ваш регион:
Упс!.. Интернет пропал!
Ваш браузер устарел.
Установите любой из современныx браузеров: