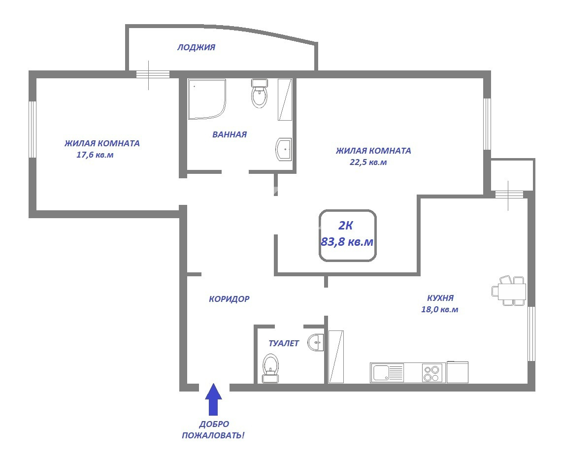
2-к квартира | 83.80 м² | 7 - 18 эт.

Площадь
83.80 м²
Этаж
7 из 18
Год постройки
2007
12 900 000 руб.
Екатеринбург, ул. Белинского,180
Этажей:
7 — 18
Дополнительные параметры
Описание

ПРОДАМ: Продам, просторную, 2 -х комнатную Квартиру в современном доме 2007 года постройки в самом центре Автовокзала.

РАЙОН:
Чкаловский, Автовокзал

ДВОР:
- Двор тихий, детская площадка, спортивная площадка.
ДОМ:
- Материал стен – кирпич / монолит Небольшое количество квартир (3 квартиры) на этаже. Надежные и вместительные лифты. Дом очень теплый. Застройщик – «Атомстройкомплекс».

КВАРТИРА:
Планировка: Потолки 3,1 метра! Кухня - 18 кв. метров с выходом на небольшой балкончик и плюс! 2 (две) изолированных комнаты (17,6 и 22,5 кв. м). Из комнаты 17,6 кв. выход на просторную лоджию. Новым хозяевам остается встроенная мебель: кухонный гарнитур, встроенные шкафы.
ИНФРАСТРУКТУРА:
- Район отличает хорошая транспортная доступность, всё рядом: оптимальное, удобное пешеходное и транспортное расположение. Рядом отделение Сбербанка, рестораны, магазины, школа и детские сады.

ЮРИДИЧЕСКАЯ ЧИСТОТА:
Собственники совершеннолетние.
Лучшее предложение в этом районе! Звоните!

ID объекта в нашей базе: 7829
Полное описание
Расположение объекта
image uploads
С «Доброделом» ставка по ипотеке ниже
Специальные программы ипотечного кредитования
Подбор ипотеки
Подходящее предложение
Сумма кредита
0 руб.
Ежемесячный платеж
0 руб.
Ставка
от 0%
Банки
ПримСоцБанк
Промсвязьбанк
ВТБ банк
Газпромбанк
Альфа-Банк
Похожие предложения
12 500 000 руб.
4-к квартира | 88.40 м² | 7 - 16 эт.
пер. Полимерный,9
12 000 000 руб.
4-к квартира | 84.20 м² | 3 - 5 эт.
ул. Нагорная,11
13 600 000 руб.
3-к квартира | 90.00 м² | 4 - 26 эт.
пер. Трамвайный,2/3
12 500 000 руб.
3-к квартира | 86.20 м² | 11 - 12 эт.
ул. Викулова,63к4
12 500 000 руб.
2-к квартира | 75.30 м² | 10 - 10 эт.
ул. Щорса,24
12 500 000 руб.
2-к квартира | 77.10 м² | 4 - 16 эт.
ул. Фролова,31
Не нашли подходящий объект?
Отправьте заявку — мы подберем другой вариант
Про этот объект вам расскажет
Ламберова Любовь Борисовна
Ламберова Любовь Борисовна
79655294433
Позвоните мне
Заявка на просмотр
Отправить PDF
Нажимая кнопку «Отправить», вы подтверждаете свое согласие на обработку персональных данных
Отправить PDF
Нажимая кнопку «Отправить», вы подтверждаете свое согласие на обработку персональных данных
Заказать звонок
Оставьте свой номер, мы свяжемся
с вами в ближайшее время
Нажимая кнопку «Отправить», вы подтверждаете свое согласие на обработку персональных данных
Проконсультируем
Задайте интересующий вас вопрос, наши специалисты свяжутся с вами в ближайшее время
Нажимая кнопку «Отправить», вы подтверждаете свое согласие на обработку персональных данных
Спасибо за обращение!
Мы перезвоним вам
в ближайшее время
Выбрать объект
Нажимая кнопку «Отправить», вы подтверждаете свое согласие на обработку персональных данных
Добавить отзыв
Записаться на собеседование
Нажимая кнопку «Отправить», вы подтверждаете свое согласие на обработку персональных данных
Заявка на стажировку
Загрузить резюме
Обзор...
Файл не выбран
Поля, отмеченные *, обязательны для заполнения
Нажимая кнопку «Отправить заявку», вы подтверждаете свое согласие на обработку персональных данных
Задать вопрос
Нажимая кнопку «Отправить», вы подтверждаете свое согласие на обработку персональных данных
Хочу работать с вами
Оставьте свой номер, мы свяжемся
с вами и все обсудим
Нажимая кнопку «Отправить», вы подтверждаете свое согласие на обработку персональных данных
Записаться на курс
Курс начинающего риэлтора
Нажимая кнопку «Отправить», вы подтверждаете свое согласие на обработку персональных данных
Оставьте отзыв о специалисте
Оцените качество работы
Укажите номер телефона, чтобы мы могли связаться с вами для подтверждения обратной связи в случае негативного отзыва, или оставьте свой отзыв, позвонив по номеру +7 (343) 363-06-01
Нажимая кнопку «Оставить отзыв»,K вы подтверждаете свое согласие на обработку персональных данных
Выберите Ваш регион:
Упс!.. Интернет пропал!
Ваш браузер устарел.
Установите любой из современныx браузеров: