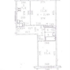
2-к квартира | 43.30 м² | 6 - 9 эт.

Площадь
43.30 м²
Этаж
6 из 9
Год постройки
1973
5 000 000 руб.
Екатеринбург, ул. 40-летия Комсомола,22
Этажей:
6 — 9
Дополнительные параметры
Описание

Продается или меняется: 2-х комнатная квартира на ЖБИ.

РАЙОН:

Кировский район, ЖБИ.

ДВОР:

- Чистый двор с современной детской площадкой, обеспечивающая досуг детей разного возраста. Большая наземная парковка. Всегда есть место поставить Ваш автомобиль.

ДОМ:

- 1973 г. постройки. Подъезд чистый. Спокойные тихие соседи.

КВАРТИРА:

- Уютная двухкомнатная квартира с окнами на две стороны подарит Вам комфорт и простор для творчества интерьера. Удобная планировка с просторными комнатами позволяет по-разному обыграть пространство. Квартира очень теплая. Санузел раздельный, что добавляет удобства и практичности для проживания. Квартира освобождена. В шаговой доступности детские сады и школа, медучреждения. В шаговой доступности Шарташский лесопарк, где есть площадки для воркаута, детские площадки, место выгула собак.

ИНФРАСТРУКТУРА:

- Рядом супермаркеты «Кировский», «Пятерочка», «Монетка», «Магнит», пункты выдачи заказов.

- Остановки автобуса рядом с домом, до трамвая пять минут ходьбы, отличная транспортная развязка.

ЮРИДИЧЕСКАЯ ЧИСТОТА:

- Квартиру можно купить в ипотеку.

- Собственников три, все совершеннолетние, не имеют исполнительных листов, банкротом не являются, паспорта действительны. Всё проверено!

ID объекта в нашей базе: 7844
Полное описание
Расположение объекта
image uploads
С «Доброделом» ставка по ипотеке ниже
Специальные программы ипотечного кредитования
Подбор ипотеки
Подходящее предложение
Сумма кредита
0 руб.
Ежемесячный платеж
0 руб.
Ставка
от 0%
Банки
ПримСоцБанк
Промсвязьбанк
ВТБ банк
Газпромбанк
Альфа-Банк
Похожие предложения
5 500 000 руб.
1-к квартира | 47.60 м² | 4 - 4 эт.
ул. Очеретина,8
5 180 000 руб.
2-к квартира | 41.30 м² | 2 - 5 эт.
ул. Посадская,54
4 850 000 руб.
2-к квартира | 44.30 м² | 5 - 5 эт.
ул. Сыромолотова,25
4 950 000 руб.
2-к квартира | 43.70 м² | 9 - 9 эт.
ул. 40-летия Комсомола,26
4 850 000 руб.
1-к квартира | 40.40 м² | 4 - 16 эт.
б-р. Сергея Есенина,6
4 700 000 руб.
2-к квартира | 41.70 м² | 2 - 5 эт.
ул. 40-летия Октября,82
5 350 000 руб.
2-к квартира | 42.40 м² | 5 - 9 эт.
ул. Владимира Высоцкого,2
5 000 000 руб.
2-к квартира | 43.70 м² | 1 - 5 эт.
ул. Красных командиров,11
4 650 000 руб.
1-к квартира | 39.30 м² | 13 - 17 эт.
мкр. Светлый,7
Не нашли подходящий объект?
Отправьте заявку — мы подберем другой вариант
Про этот объект вам расскажет
Карепова Ольга Валерьевна
Карепова Ольга Валерьевна
79222147341
Позвоните мне
Заявка на просмотр
Отправить PDF
Нажимая кнопку «Отправить», вы подтверждаете свое согласие на обработку персональных данных
Отправить PDF
Нажимая кнопку «Отправить», вы подтверждаете свое согласие на обработку персональных данных
Заказать звонок
Оставьте свой номер, мы свяжемся
с вами в ближайшее время
Нажимая кнопку «Отправить», вы подтверждаете свое согласие на обработку персональных данных
Проконсультируем
Задайте интересующий вас вопрос, наши специалисты свяжутся с вами в ближайшее время
Нажимая кнопку «Отправить», вы подтверждаете свое согласие на обработку персональных данных
Спасибо за обращение!
Мы перезвоним вам
в ближайшее время
Выбрать объект
Нажимая кнопку «Отправить», вы подтверждаете свое согласие на обработку персональных данных
Добавить отзыв
Записаться на собеседование
Нажимая кнопку «Отправить», вы подтверждаете свое согласие на обработку персональных данных
Заявка на стажировку
Загрузить резюме
Обзор...
Файл не выбран
Поля, отмеченные *, обязательны для заполнения
Нажимая кнопку «Отправить заявку», вы подтверждаете свое согласие на обработку персональных данных
Задать вопрос
Нажимая кнопку «Отправить», вы подтверждаете свое согласие на обработку персональных данных
Хочу работать с вами
Оставьте свой номер, мы свяжемся
с вами и все обсудим
Нажимая кнопку «Отправить», вы подтверждаете свое согласие на обработку персональных данных
Записаться на курс
Курс начинающего риэлтора
Нажимая кнопку «Отправить», вы подтверждаете свое согласие на обработку персональных данных
Оставьте отзыв о специалисте
Оцените качество работы
Укажите номер телефона, чтобы мы могли связаться с вами для подтверждения обратной связи в случае негативного отзыва, или оставьте свой отзыв, позвонив по номеру +7 (343) 363-06-01
Нажимая кнопку «Оставить отзыв»,K вы подтверждаете свое согласие на обработку персональных данных
Выберите Ваш регион:
Упс!.. Интернет пропал!
Ваш браузер устарел.
Установите любой из современныx браузеров: